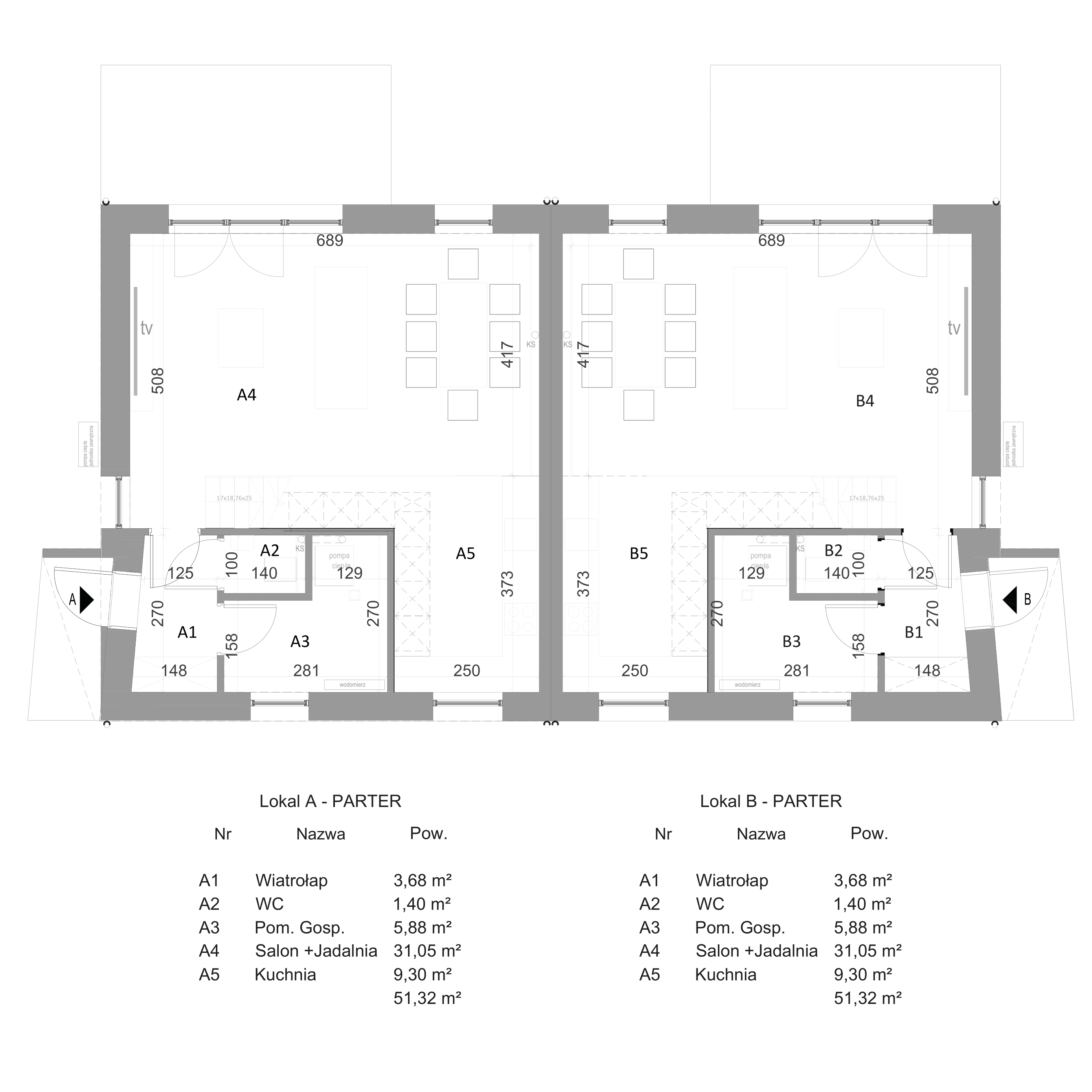
Pragniemy zaoferować Państwu domy w zabudowie bliźniaczej o powierzchni około 100m2 wraz z działkami o średniej wielkości 520m2. Osiedle położone jest w Karpicku przy ulicy Świerkowej.
Na parterze znajdują się salon, kuchnia, łazienka oraz pomieszczenie gospodarcze. Natomiast na piętrze dostępne są trzy sypialnie oraz łazienka.
Poniżej krótki opis techniczny
- ściany zewnętrzne z pustaków ceramicznych CERPOL MegaMax 25 cm, ścianki działowe beton komórkowy 12cm
- żelbetowy strop monolityczny
- izolacja na ścianach zewnętrznych- styropian 25cm, elewacja – tynki mineralne system KLEiB, częściowo płytki system Izoflex; dylatacja pomiędzy budynkami (styropian)
- dach stromy pokryty dachówką cementową IBF Aarchus, na pełnym deskowaniu, izolacja dachu piana PUR 20cm, rynny stalowe, powlekane
- ocieplenie ścian fundamentowych styropian EPS 100 – 15cm, ocieplenie posadzki na gruncie styropian EPS 100 – 15cm + 5cm pod posadzką ogrzewaną, izolacja posadzki ogrzewanej na piętrze 5cm
- parapety zewnętrzne aluminiowe
- ściany wewnętrzne – tynk cementowo wapienny
- pompa ciepła z wbudowanym zbiornikiem na wodę Vitocal 111-S typ AWBT M-E 111.B08 z podgrzewaczem 220L,buforem 40L,Vitotronic 200 i Vitoconnect 100 –VIESSMANN
- stacja uzdatniania wody Viessmann
- ogrzewanie podłogowe w całym domu poza kotłownią (sterowanie osobno w każdym pomieszczeniu) + podejścia pod grzejniki w łazienkach i kotłowni
- okna Oknoplast PRISMATIC, pakiety 3 szybowe, rolety zewnętrzne sterowane elektrycznie
- instalacja alarmowa, instalacje do kamer, domofon, instalacja teletechniczna, peszel dla światłowodu doprowadzony do ulicy, w aneksie kuchennym przyłącze 3 fazowe, osobna rozdzielnia dla instalacji niskonapięciowych
- rekuperacja (odzysk ciepła) z jednostką centralną
- sufity podwieszane, instalacje wod kan, wentylacyjne zabudowane pod sufitem
- drzwi wejściowe antywłamaniowe Wikęd Termo Prestige Lux, stalowe z wypełnieniem poliuretanowym, ciepły montaż
- wyprowadzone na zewnątrz: instalacje wodna (ukryta w dodatkowych skrzynkach rewizyjnych) i elektryczna
- podjazd z kostki brukowej bądź płyt ażurowych
- podejście do domu, taras z płyt betonowych bądź kostki betonowej
- opłotowanie (poza stroną frontową), droga wewnętrzna z kostki brukowej i płyt ażurowych








